Bowdoin College Museum of Art

Description

Bowdoin College holds one of the oldest collegiate art collections in the United States, originating in 1811 when James Bowdoin III bequeathed his collection of European paintings and Old Master drawings to the College. In 1891, Mary and Harriet Walker endowed the construction of a freestanding museum building to house the collection. The result was the historically significant Walker Art Building, which was designed by Charles Follen McKim of McKim, Mead and White. 

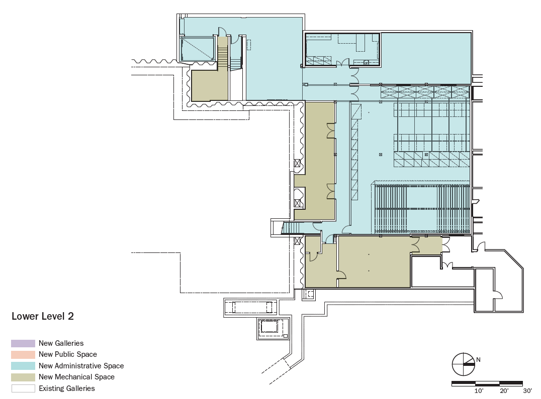
The 19th-century Walker Art Building symbolized Bowdoin’s continued commitment to the arts, but as the institution grew over time, it developed new needs to which the space was not suited.  This renovation addresses new program needs, executes necessary code and accessibility upgrades, and incorporates state-of-the-art security and climate control systems to bring the museum up to contemporary standards. A dramatic glass, bronze, and blackened steel pavilion on the south side of the original building provides a new entry to the expanded museum and houses a gracious new steel and stone stair and glass elevator, both of which lead to visitor service spaces and a new lower-level gallery entrance. 

A larger addition, on the west side of the historic structure, houses seven new galleries, including a dedicated seminar room, as well as an upgraded loading facility and high-capacity elevator. A new public stair connects the upper and lower gallery spaces. A new administrative office wing and high-density archival storage spaces support the teaching mission of the museum. 

“The opening of the restored and expanded Bowdoin College Museum of Art celebrates our role as a leader in college art museums and our mission to broaden knowledge and inspire all our visitors.”

— Katy Kline, Former Director of the Bowdoin College Museum of Art

Details

Art Institution
Brunswick, Maine
2007

Awards

Gold Award: Renovation Awards | Building Design + Construction | 2010

Honor Award | AIA New England | 2008

American Architecture Award | The Chicago Athenaeum: Museum of Architecture and Design | 2008

Award for Design | Boston Society of Architects | 2008

Maine Statewide Historic Preservation Honor Award | Maine Preservation | 2008

Building Division Winner | 2008 Build Maine Awards | 2008

Illumination Design Award | IES New England | 2008

Publications

"Bowdoin College Museum of Art." Umran Magazine, pp. 104-109: February 2009.

Stephens, Suzanne. "Bowdoin College Museum of Art." Architectural Record, pp. 120-124: Feb 2008.

Drawings