Scully Hall

Description

The keystone building in the first phase of the Princeton Fields Master Plan, Scully Hall expands the existing student housing and consists of dormitories for upper-level students, lounges, classrooms, study areas, and kitchenettes. Positioned at the center of the proposed massing complex, Scully Hall functions as the gateway to the elliptical open space containing the playing fields.  

To the north, Scully Hall reinforces College Walk, an important pedestrian corridor linking the east and west campuses. Its design respects the traditional Princeton architectural language, helping to define more traditional residential courtyard spaces. 

On the southern edge along the playing fields, Scully Hall presents a more contemporary and larger-scaled face. Upon completion of the master plan, this face will establish a memorable campus front and dramatic backdrop for future events on the playing fields. 

“This attractive and spacious complex will enable us to offer our students a living environment that complements the outstanding academic opportunities the University offers. In addition, the new space will give us the ability to dramatically improve our overall dormitory maintenance program, benefiting all students over time.”

— Harold Tafler Shapiro, 18th President of Princeton University

Details

Expanding Existing Residence Halls
Princeton, New Jersey
1998

Awards

Design Excellence in Housing Award | Boston Society of Architects | 2002

Award for Design | AIA New England | 2000

Honor Award | Boston Society of Architects | 2000

Publications

Arcidi, Philip. "Varsity Modern." Architecture , July 1999: pp. 92-97.

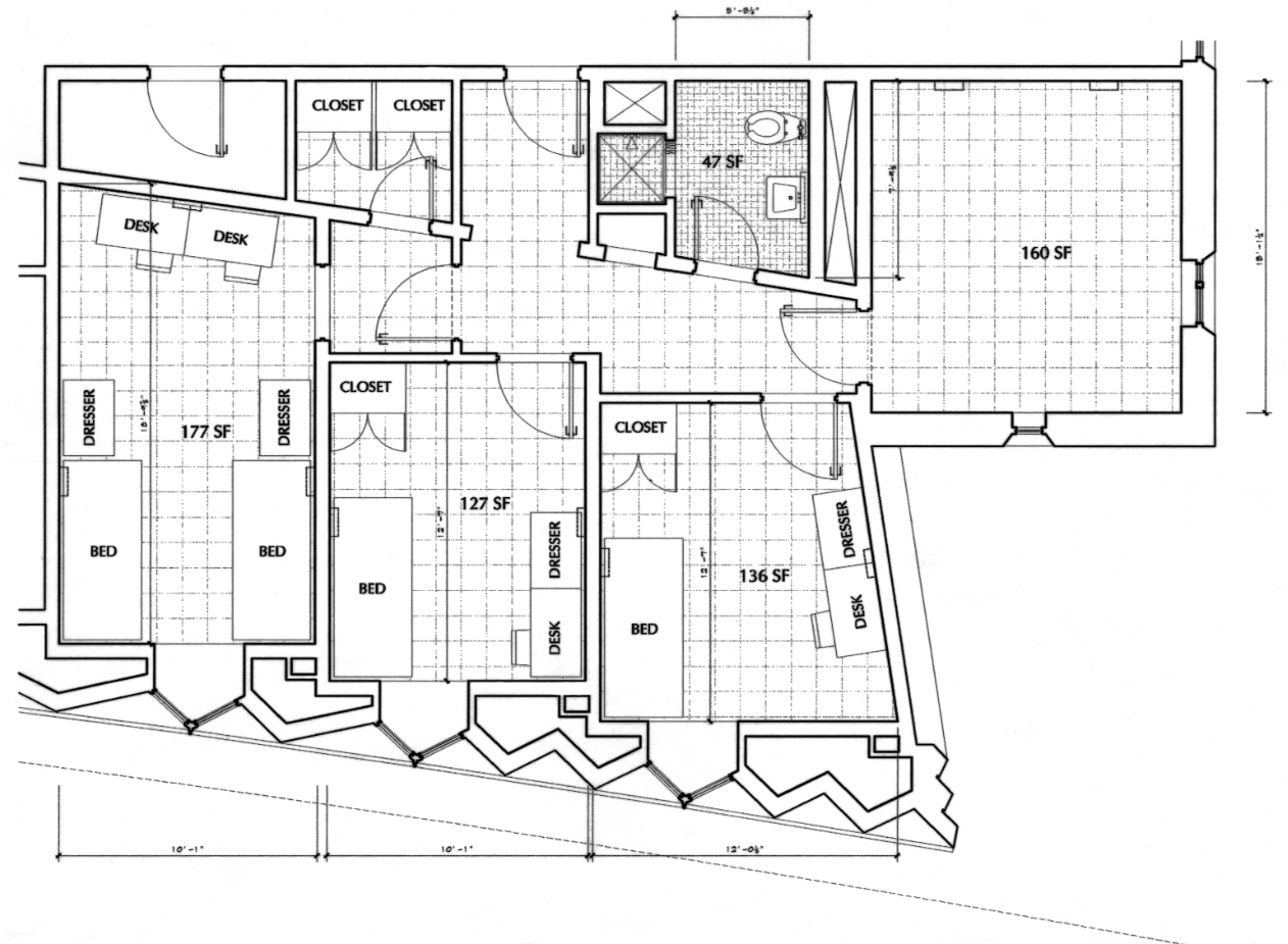
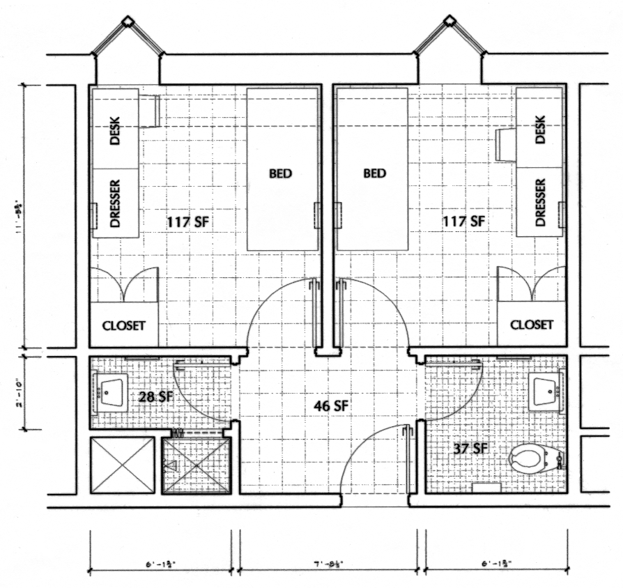
Drawings