The Chazen Museum of Art

Description

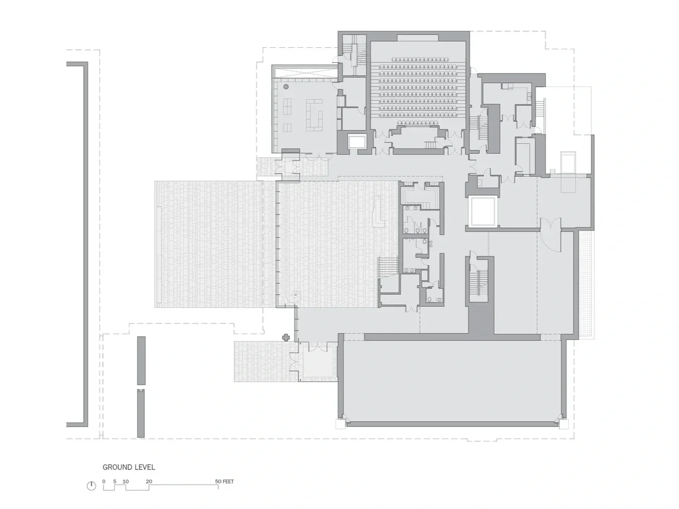
For the Chazen Museum of Art, Machado Silvetti worked with Continuum Architects + Planners to create a strong physical link and a sense of continuity between the existing museum and the new addition. A bridge gallery connects the two buildings, creating a seamless flow of gallery space; its cladding unifies the south façade, establishing a unique campus gateway. 

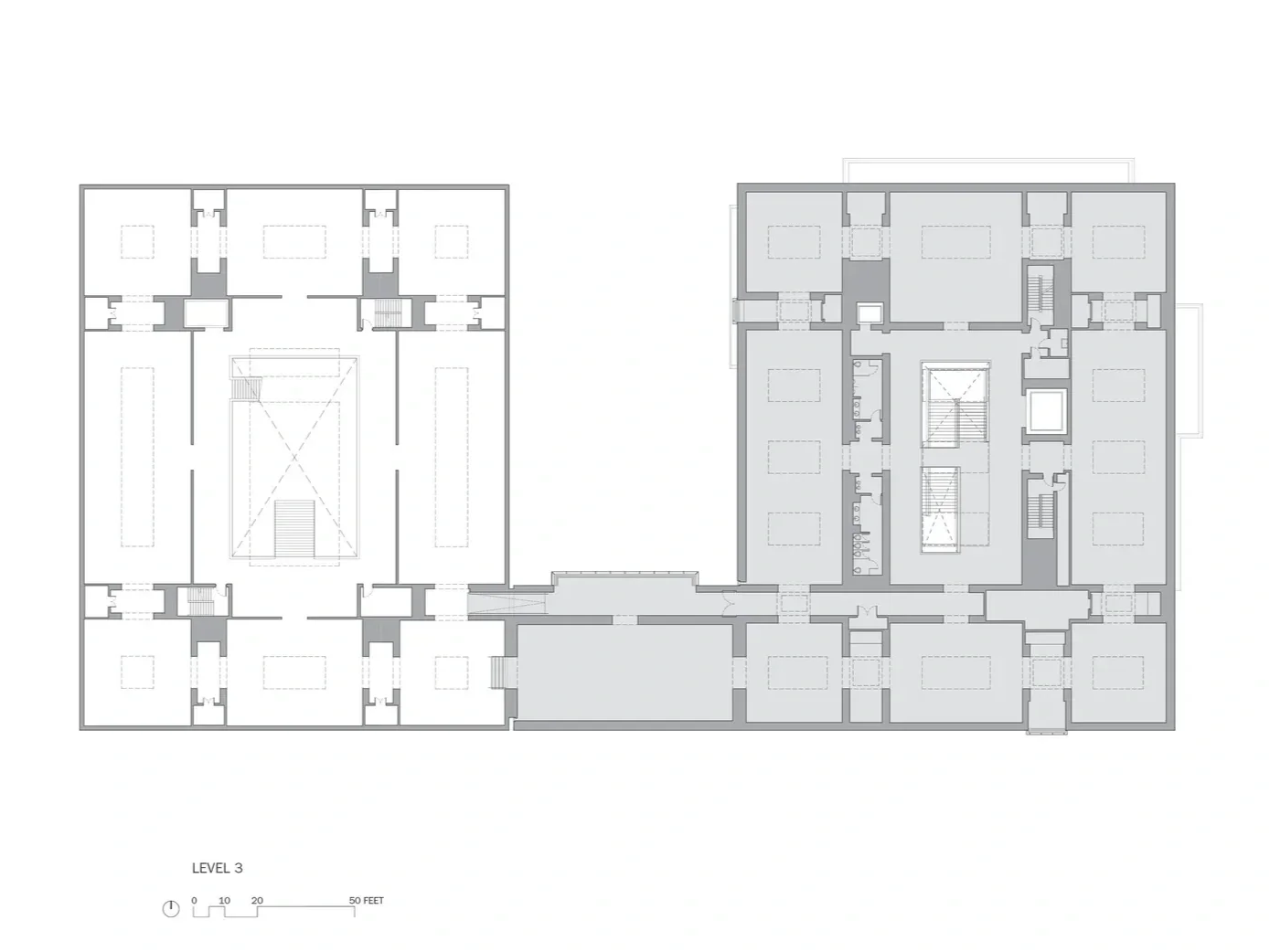
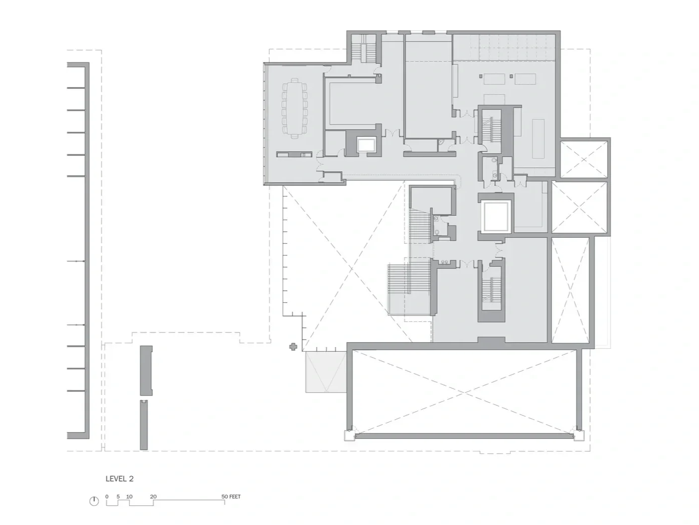
A series of projected and receded boxes—made from bronze/copper plate, board-formed concrete, and glass—define the first and second levels. The public lobby, a two-story glass volume that orients itself toward a significant courtyard space along a portion of the East Campus Mall, makes the new museum entrance visible from both the pedestrian mall and University Avenue. Collaborator Inside/Outside designed the translucent lobby curtain and auditorium stage curtain. Centered in the lobby, the main stair is a continuous band of stone veneer—a carpet that climbs and folds to define the different elements and spaces. Copper-clad monitors make up the roofscape and bring natural light deep into the museum.

“This transformative moment for the Chazen Museum is all about smart growth, an expansion directly connected to our mission to serve the University of Wisconsin campus and the Madison community.”

— Russell Panczenko, Museum Director

Details

Continuity from the Existing to New Structure
Madison, Wisconsin
2011

Awards

Honor Award | AIA Wisconsin | 2012

Project of the Year and Best Medium Project | Madison Trust for Historical Preservation | 2012

Historical Preservation Awards Compatible New Construction Category | Madison Trust for Historical Preservation | 2012

Top Project | The Daily Reporter/Wisconsin Builder | 2011

Publications

Smith, Jennifer A. "The New, Improved Chazen Museum," ISTHMUS. Editor Robbins, Dean. Madison, Wisconsin: Isthmus Publishing Company, Inc., 2011. p. 16-17.

Panczenko, Russell. "Constructing a Museum," 2011.

Drawings