The Getty Villa

Description

As an educational center and museum dedicated to the study of classical arts and cultures, the Getty Villa serves a diverse audience through exhibitions, conservation, scholarship, research, and public programming. Following an extensive international competition, the Getty Trust commissioned Machado Silvetti to develop a master plan for the site and design the expansion—transforming the Villa from a private museum into an accessible public institution. 

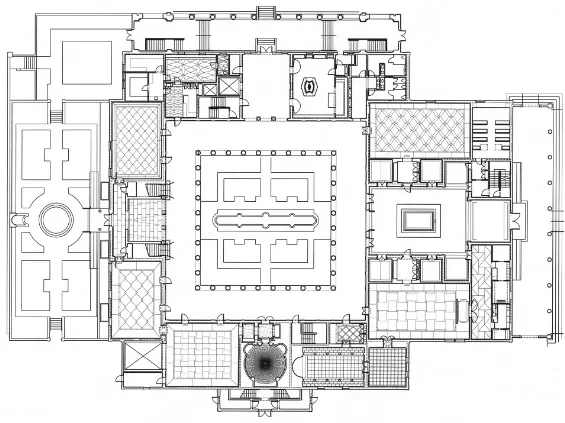
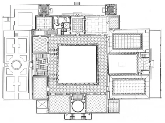
The project includes the remodeling of the J. Paul Getty Museum, a re-creation of a first-century Roman country house, to exhibit the permanent collection of antiquities; the transformation of Getty’s ranch house into a research facility and library; and the construction of new support facilities, public areas, and gardens. The redesigned landscape integrates new components—such as the Entry Pavilion, the Fleischman Theater, the museum café and store, conservation laboratories, a scholar’s library, and educational facilities— with the Museum as the focal point.  

The architecture and site strategy creates a fresh image for the institution through a landscape that unifies the disparate existing structures, new components, expanded gardens, and public spaces. Machado Silvetti transformed the challenging topography into an amenity: visitors now wander through the lush site along the contours of the terrain, connecting the various landmarks and offering privileged views of the Museum, the estate and the Pacific Ocean beyond. 

“The new architecture neither contrasts nor emulates the architecture of the museum building itself, but defines the character for the new Getty Villa site so that it stands on its own while seeking harmony with all the disparate existing structures, steep topography, the gardens, and public spaces.”

— World Architects

Details

Educational Center
Los Angeles, California
2008

Awards

Honor Award | AIA New England | 2007

Honor Award | Boston Society of Architects | 2007

Commercial Exterior Award of Excellence | Marble Institute of America | 2007

Westside Prize Honor Award | Westside Urban Forum | 2006

Cornerstone Concrete Excellence Award | Southern California Ready Mixed Concrete Association | 2006

Best Restoration | McGraw-Hill California Construction Best of 2006 Awards | 2006

Grand Prize Award | Los Angeles Business Council | 2006

Best Civic Architecture | Los Angeles Business Council | 2006

Project Team Award | AIA Los Angeles | 2006

Charles Pankow Award | American Concrete Institute (ACI) | 2005

Publications

Giovannini, Joseph. "Getty Villa, Los Angeles." AV Monografias, Issue 122, 2006: pp. 118-129.

Pearson, Clifford A. "The Getty Villa, Malibu." Architectural Record, May 2006: pp. 106-115.

Nicholson, Louise. "A villa re-imagined: at the end of January, the Getty Villa in Malibu reopened as a museum of Greek, Roman and Etruscan antiquities." Apollo, Feb 2006: pp. 28-37.

Thrush, George, FAIA. "The Getty Villa Reopened." Minerva, March/April 2006: pp. 13-15 Volume 17, Number 2.

True, Marion and Jorge Silvetti. "The Getty Villa.” Los Angeles: Getty Trust Publications, 2006.

Ouroussoff, Nicolai. "A Classic Conflict." Los Angeles Times, November 1, 1998.

Kroloff, Reed. "Machado and Silvetti Get Real." Architecture, April 1997: cover, pp. 2-3, 80-91.

Drawings


Stories

The Getty Villa, Part I - Archaelogy

Story

The Architecture of Cultural Heritage

Project Interview