The Mint Museum

Description

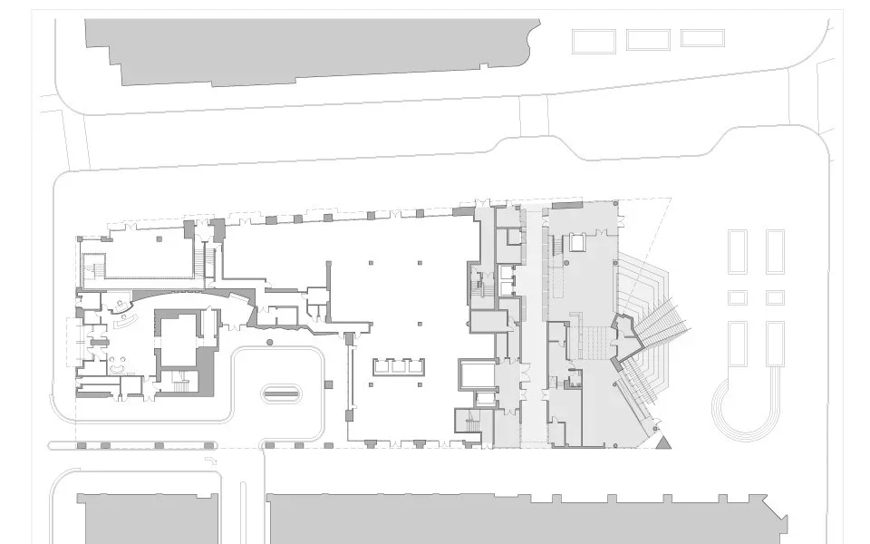
This project combines the Mint Museum of Art and the Mint Museum of Craft and Design—two affiliated institutions formerly located apart—into a single building on a new site in downtown Charlotte, North Carolina. 

The Mint is part of an expansive cultural campus, which includes a performing arts theater, an Afro-American cultural center, and an art museum. The brief required an eight-level parking garage and a 35-story condo tower. The building’s east facade, conceived as an “open door,” fronts a large urban plaza and establishes a civically scaled entry for the institution, while also symbolically acknowledging the two collections displayed inside. 

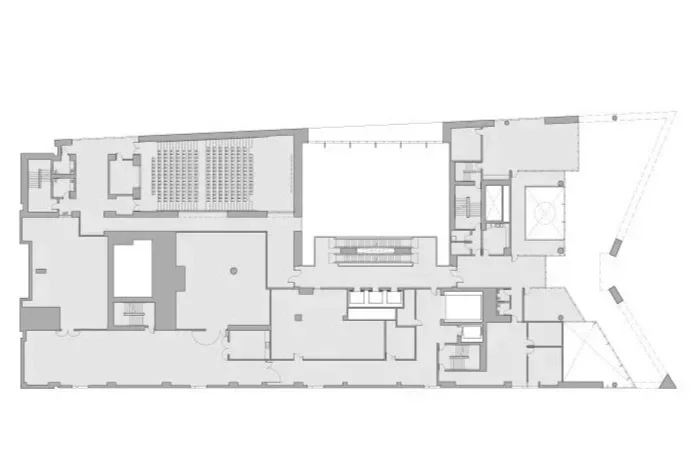
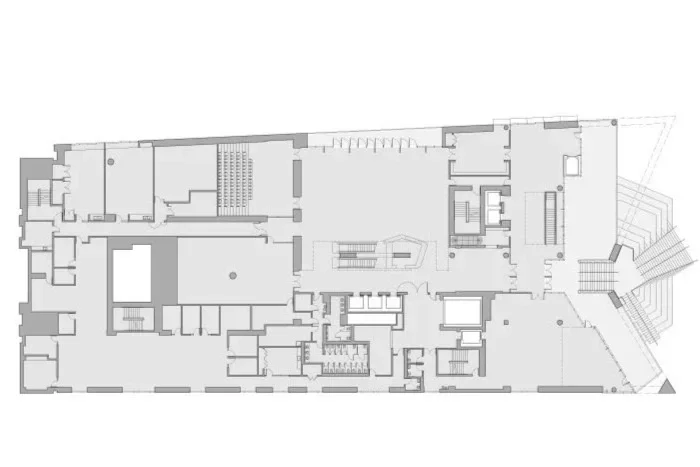
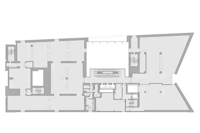
From the plaza, a large public staircase rises to the second level, where visitors enter the Grand Room—a multi-story atrium that not only organizes the museum’s program but also showcases the large-scale works and offers visitors a glimpse of both museum collections.  

“The five-story, 145,000-square-foot facility combines inspiring architecture with cutting-edge exhibitions to provide visitors with unparalleled educational and cultural experiences.”

— Mint Museum

Details

Combining Two Institutions
Charlotte, North Carolina
2010

Awards

Honor Award | AIA Charlotte | 2013

Publications

Washburn, Mark. "Sparkling Debut at the Mint." The Charlotte Observer, pp. 1,13a, 2010.

Drawings