The Wellin Museum of Art

Description

The Wellin Museum occupies a prominent corner site at Hamilton College, near the Art History department and the future Theatre and Studio Arts Building. Together, these buildings frame a reconstructed pond and create a new arts quad that unifies both sides of the campus.  

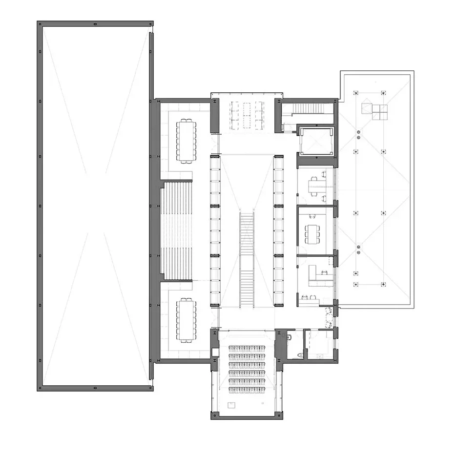
The museum’s plan and massing follows a clear tripartite diagram, anchored by a central “cabinet of curiosities” entry lobby and archival space. The textured dark terracotta cladding of the core volume emphasizes its critical programmatic role. The western wing, clad in undulating reconstructed stone blocks, houses a reconfigurable gallery that can support student-curated shows. A 48-seat lecture hall, workshops, and support spaces round out the museum’s ambitious teaching mission. 

The design surpasses stringent archival museum standards for temperature and humidity requirements, while occupancy sensors and a high-performance envelope meet the College’s sustainability goals.

“Architecturally, the building turns the concept of a museum inside out, revealing the inner workings of the institution and its collection for all to see.”

— Tracy L. Adler, Johnson-Pote Director

Details

Physical Connection to Hamilton College
Clinton, New York
2012

Awards

Citation for Design Excellence | Boston Society of Architects | 2014

Publications

Clemence, Paul. "Point of View: From Steam Fitting to Museum Fittings." Metropolismag.com. June 29, 2013. Metropolis Magazine: The Metropolis Blog. August 6, 2013.

Steinhauer, Jillian. "Shards of an Artist's Utopia at the New Wellin Museum." Hyperallergic.com. June 26, 2013. Hyperallergic. August 5, 2013.

Godfrey Larmon, Annie. "Art: Dannielle Tegeder." Bombsite.com. June 26, 2013. Bomblog. August 5, 2013.

Drawings