Tides Institute & Museum of Art

Description

The renovation and adaptation of the Masonic Building at the Tides Institute & Museum of Art (TIMA) preserves the region’s cultural legacy through remarkable art collections in expanded exhibition and gallery spaces. In early 2022, Machado Silvetti undertook a study for the renovation, which was selected for a prestigious National Endowment for the Humanities Challenge Grant.  

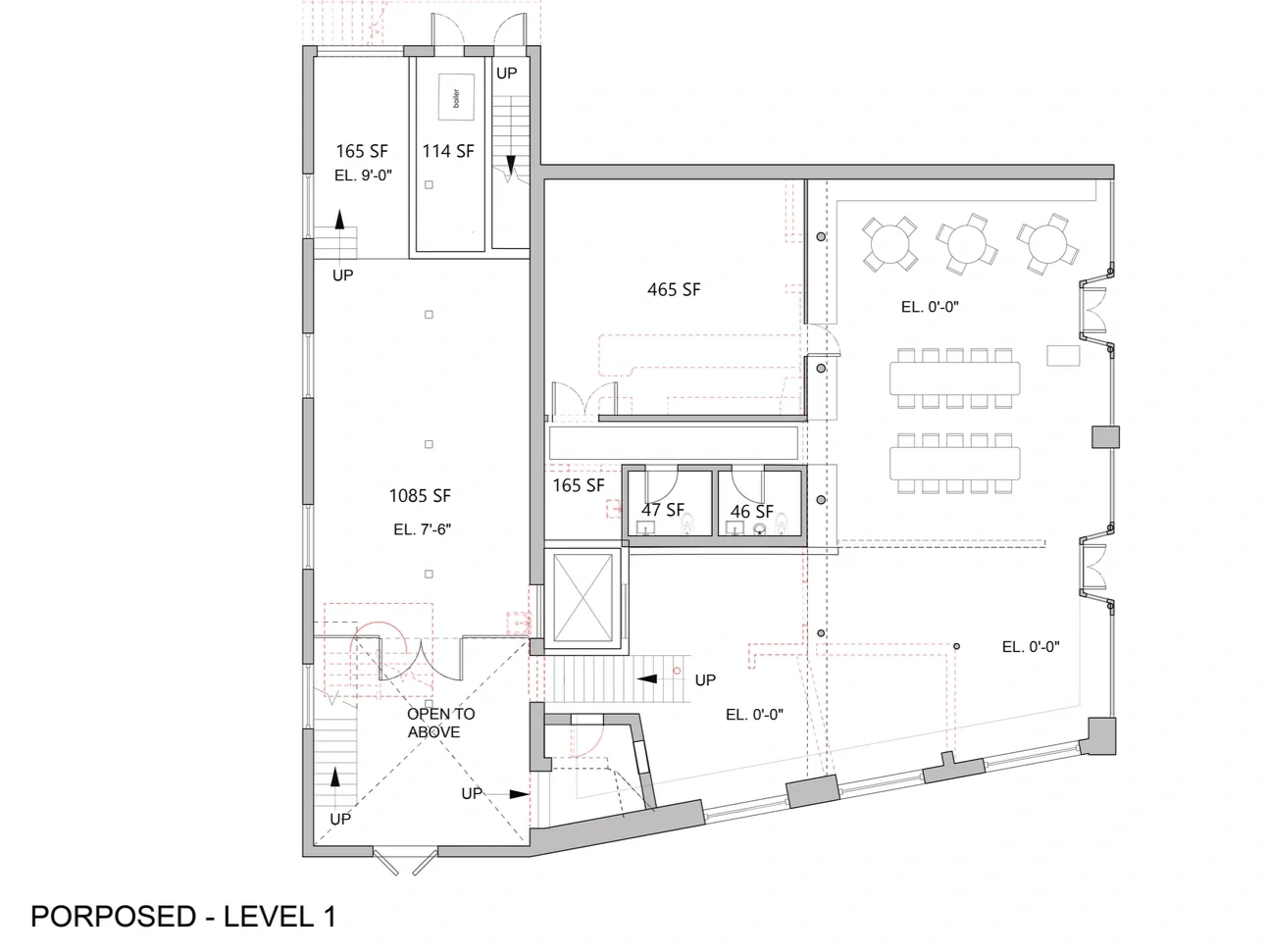
The National Register of Historic Places designated the Masonic Building, built in 1887, as contributing to Eastport’s Historic District. By 2019, the facade was on the verge of collapse; TIMA purchased and immediately salvaged the building. Machado Silvetti then transformed it into a multi-use space that maintains the existing historic fabric. A new porous museum entrance, lobby, retail space, and culinary programming connect the collection to the public streetfront. Inside, glass archival cases reference the historic commercial storefronts and showcase the collection as a sort of cabinet of curiosities. 

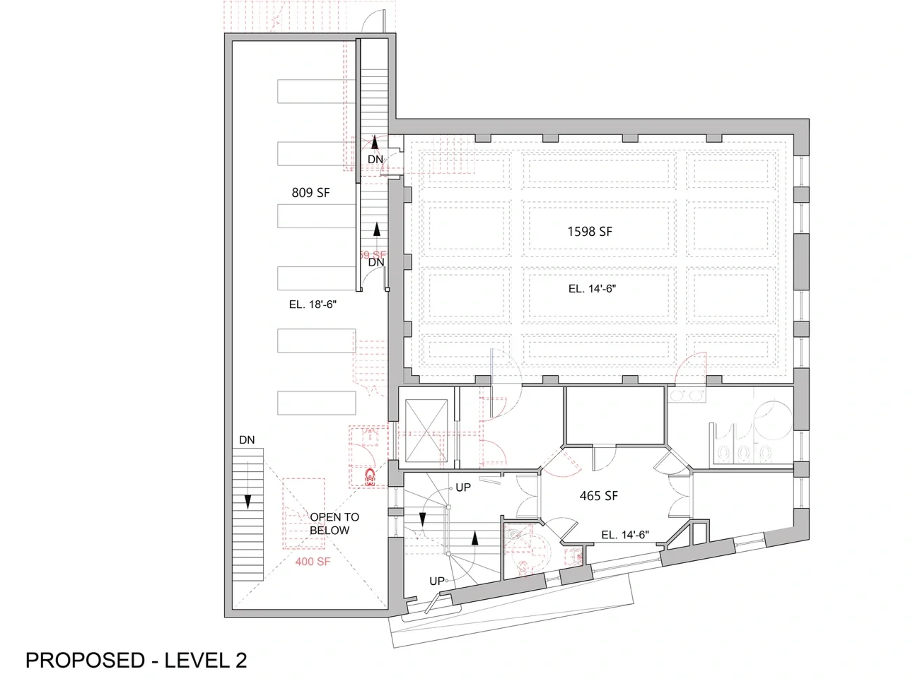
At the second floor, expanded exhibition space restores and revives Masonic Hall. Museum support spaces are carefully incorporated to fit within the original layout of rooms, creating a unique octagonal space overlooking Eastport.  

“TIMA’s vision for Masonic Hall is to allow TIMA to tell and preserve the story of the cultural legacy of this region for the first time through its remarkable collections with expanded and more appropriate exhibition and collection spaces along with a local foods cafe.”

— Tides Institute & Museum of Art

Details

Adaptive Re-use of a Historic Building
Eastport, Maine
2022
Unbuilt

Drawings


Stories

TIMA- Masonic Building Study

Story