Town Green Building

Description

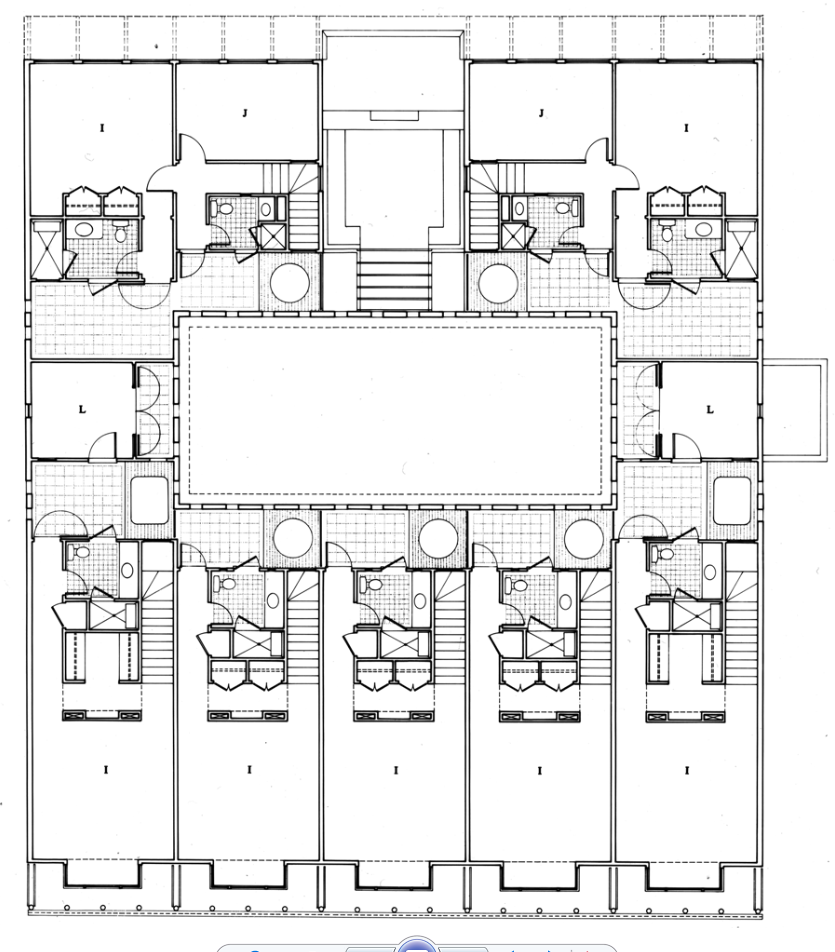
Facing the town square in Seaside, a beachfront town on the western coast of Florida, the Town Green Building houses retail space, offices, and residential units. Connected to the adjacent buildings by a continuous arcade, mandated by Duany Plater-Zyberk’s master plan guidelines for the town, the building aspires to a strong civic expression and to a memorable and appropriate character. Overlapping myths—of the Gulf of Mexico and its Caribbean and Mexican imagery, of Florida and its Hispanic and Mediterranean resorts, and of Seaside and its traditional urbanity—all find formal expression.

To articulate both the civic and domestic nature of the program, the facade is treated as a large, almost monumental, screen in front of a series of domestic units, marked by box windows and individually pitched roofs. Climatological factors, influential to the architectural evolution in this region, characterize the project: generous roof overhangs, shutters and shading devices, tall ceilings with fans, and screened porches all reduce solar load and keep spaces cool and fresh. A residential patio, located at the center of the building, provides access to the residential units. In this space, brilliant colors and bold tile patterns create an unexpectedly vivid visual experience. An adjacent garden terrace, overgrown with climbing vines, acts as a more natural counterpoint and lends a view to the ocean.

Details

Local Arhcitectural Elements
Seaside, Florida
1995

Awards

Citation in Architecture | Progressive Architecture 40th Annual Award | 1993

Unbuilt Design Award | The Florida Association of the American Institute of Architects | 1991

Citation for Excellence in Architecture | Boston Society of Architects | 1990

Publications

Kahn, Eve. "Florida's Answer to Kansas." The Wall Street Journal, May 19, 1995.

"Fortieth Annual Progressive Architecture Awards." Progressive Architecture, January 1993: pp. 58-61.

Drawings