UNT College of Visual Arts & Design
Feature
Story
Published
January, 2021
The College of Visual Arts and Design (CVAD) at the University of North Texas is one of the largest art schools in the country and a major hub of innovation for the Dallas Fort Worth area. In 2019 Machado Silvetti, as Design Architect in collaboration with Local Architect Corgan, completed a renovation and significant expansion of the existing CVAD arts building to create a new 220,000 ft2 facility large enough to accommodate their over-two thousand person student-body. The new facility matches CVAD’s ambitions and national success, setting a new standard in studio, workshop and teaching spaces for innovative and interdisciplinary arts and design education.
One College/One Building
The original Arts Building, designed by the Dallas firm, Clutts and Parker, was built in 1970 as a purpose-built home for the Department of Art. However, after forty-five years of intensive use, large enrollment numbers and extensive course offerings, the College of Visual Arts and Design was forced to seek out studio and teaching spaces wherever room was available across the UNT campus. A major goal of the CVAD project was to bring the majority of critical programs back under one roof and reestablish the CVAD building as a clearly identifiable home for the College of Visual Arts and Design.
Campus Map showing the pedestrian spin of the UNT Denton Campus , which includes the Art Walk on the northern side of campus, and the CVAD building called out in red.
Site Plan and photos of existing conditions
Iterative diagram showing formal approach to the expansion
Recognizing that unification of the College was the single most important design mandate and sensitive to concerns among staff and students that there would be segregation between programs located in the renovated, or new buildings, Machado Silvetti established the motto ‘One College One Building’. Critical to the formalization of this motto is the blurring of boundaries between the renovated building to the west and the new additions on the east. To this end, the renovated and new buildings share a common structural grid and floor-level alignments, and are organized around a central courtyard space.
Longitudinal (E-W) section of the CVAD building with the existing building on the left
Photo of the southern façade of the CVAD building with the existing building furthest to the left. Photo by Anton Grassl
Campus Connections
Located at the northeast corner of the UNT campus, the College of Visual Arts and Design defines the northern edge of the academic core and Arts District and serves as a major anchor of the previously established Arts Walk. Prior to the expansion and renovation project, the existing arts building stood as an island at the corner of campus—closed-off and isolated. The addition’s architecture and landscape design now fully integrate CVAD within the University by establishing and strengthening visual and spatial connections with existing campus buildings and spaces. These connections are reinforced by complimentary landscape design and the innovative incorporation of campus material palettes into the building’s façades and public spaces.
Ground level Site Plan
To make CVAD a fully integrated part of the campus, the ground level was designed to be porous with multiple entrance portals to extend the campus path network into and through the newly created courtyard. Primary building entrances into the existing west wing and newly constructed east addition are accessed from the courtyard to establish a shared entry experience. It is a recognizable campus-scale entrance, which the original building had lacked, and that further helps to establish the CVAD building on campus as the clearly identifiable home for the College of Visual Arts and Design.
Ground level Site Plan
View of the breezeway and main stair entrance of the Eastern addition, from the courtyard. Photo by Anton Grassl
View of the courtyard facing façade of the Eastern addition
Sized to hold the entire College of Visual Arts and Design student body for graduation and formal school ceremonies, the courtyard has become a campus destination. To showcase student work and open the College to the public, this outdoor CVAD living room supports a range of happenings from outdoor fashion shows to public art film screenings and student work installations. Additionally, a cafe along the southern pedestrian allée encourages students and faculty from all parts of campus to spend time in the shady arts building courtyard.
Diagrammatic series of potential uses and capacity of the CVAD courtyard
Community Connections
The CVAD addition, sits at an important intersection between the edge of campus and the city of Denton, acting as both gateway and link between communities. Previously, the exciting work being produced and displayed within the CVAD was largely hidden from public view in the existing concrete building. The new facility with its public face on the corner of Mulberry and Welch uses transparency and programs to create new and exciting connections to the Denton and larger Dallas/Fort Worth arts community. Events in the galleries and courtyard draw audiences from across UNT, the City of Denton and the larger region.
Clockwise from Top: Works on paper study and seminar room, with generous views out to the corner of Mulberry and Welch, that makes use of the Northen exposure, which is ideal for works on paper spaces; Art storage space; CVAD gallery in the Eastern addition, accessible from the breezeway. All photos by Anton Grassl
Program Composition
Prior to the new CVAD, Space and infrastructural limitations within the existing building forced the College to seek left over spaces across UNT’s vast campus to house printmaking, fashion design, photography, ceramics and a wide range of digital media, design, art history and art education programs. This geographic dispersion of studios, workshops and classrooms challenged the College’s efforts to build a cohesive and cross disciplinary culture amongst its many strong departments, and was a primary motivator creating the new CVAD.
Clockwise from Left: Preliminary Programming Diagram; Space planning diagram for the phases of the creative process; Photo of a programming workshop, led by Machado Silvetti, with CVAD leadership and staff
Machado Silvetti worked closely with the faculty and staff of the College of Visual Arts and Design and the UNT Office of Facilities, Planning, Design and Construction to assess and advance programming. The reconciliation of tightly controlled program area and budget constraints and the unique space and technical requirements of art production spaces required a series of difficult choices to be made during this process.
Views of a selection of the many types of classrooms, studios and maker spaces included in the CVAD building, Clockwise from Top: Printmaking studio; Drawing Studio featuring natural light from the Eastern addition monitors; Classroom with pin-up space in the renovated building (photo by Machado Silvetti); Fabrication workshop. All photos, except where noted, by Anton Grassl
The new building at UNT was able to provide high bay flexible spaces with state of the art technology for some of the new media and innovative programs such as XRez—UNT’s program that uniquely blends art and science with a creative studio and research lab. Photo-left by Anton Grassl; Photo-right by Machado Silvetti
Interior Organizing Principles
The new CVAD unifies and breaks down physical barriers between departments, through innovative architecture, space planning, and systems design. It creates a highly dynamic building which promotes cross-disciplinary collaboration and research. The mantra of “windows not doors” was a recurring theme throughout the programming phase. This motto underlined the desire to break programs out of their confining walls and encourage students and faculty to observe and be inspired by the work of their colleagues and peers.
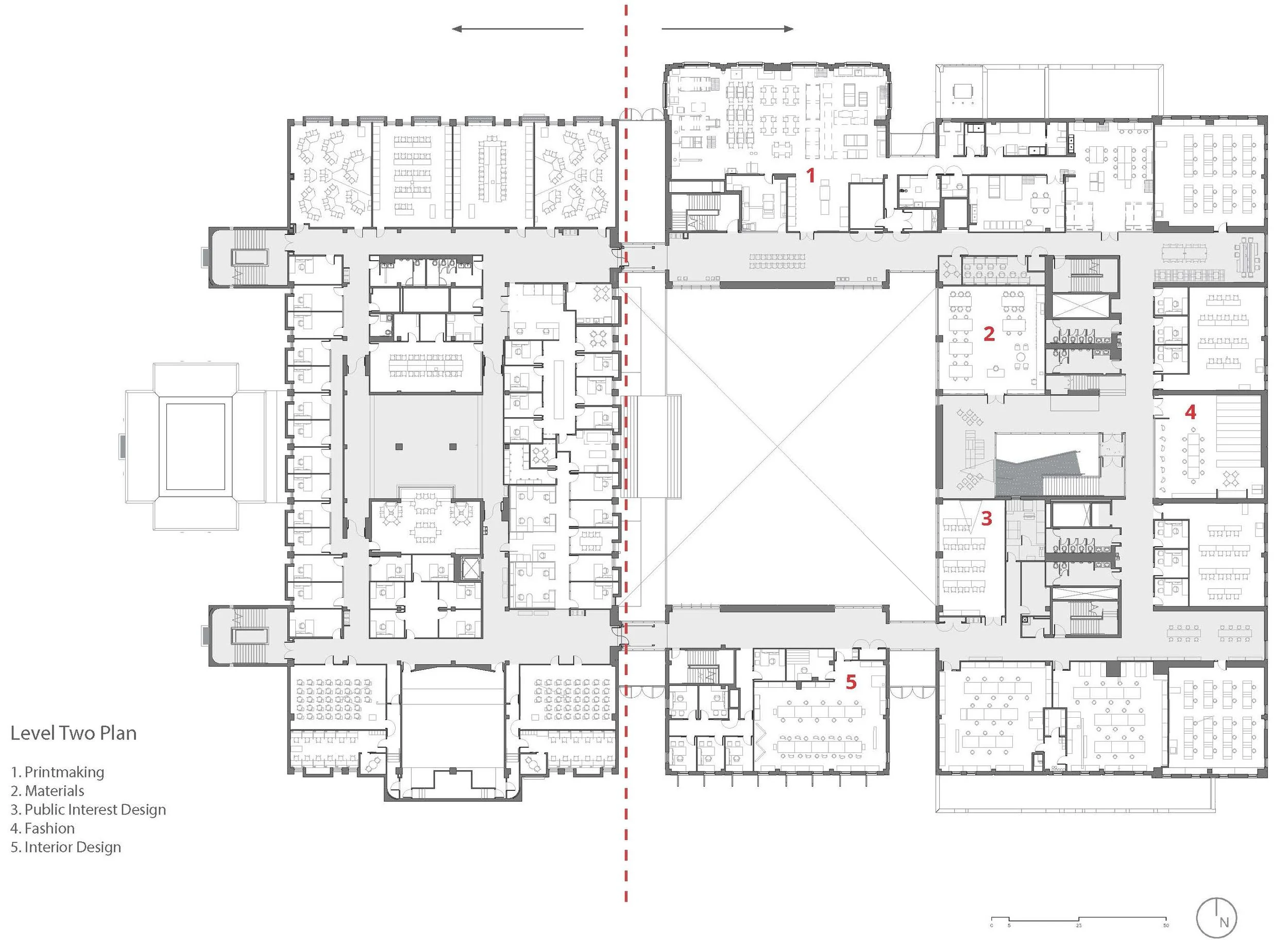
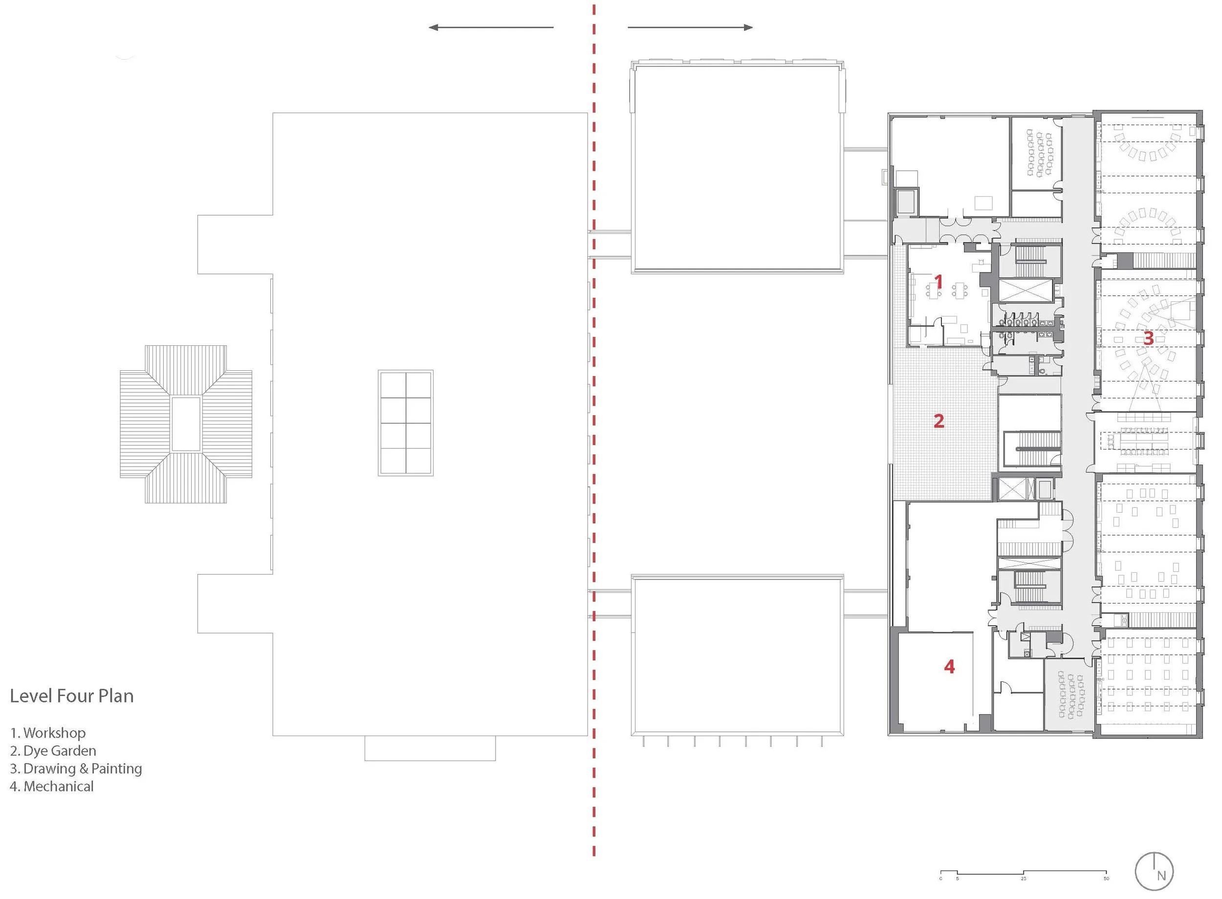
Level Two and Four Plans, exemplary of the organizing principles
For such a large building tasked with holding nearly the entire CVAD program and providing the needed space and technologies for these departments, while simultaneously promoting a sense of community and enabling opportunities for collaboration, it was paramount to have a clear set of organizing principles. Circulation alignments, framed long views along corridors between the east and west, and common views of the shared courtyard unify the building. The primary east-west corridors act as Main Streets on each floor, with generous views into classrooms and studio spaces, and areas within these wide corridors that can be used as pin-up/critique spaces. Continuity in lighting, systems controls, finishes, furniture and equipment all help to reinforce this blurring of new and old.
Interior circulation spaces, Clockwise from Top Left: Open study space and stairs from Level Three to Level Four; Example of critique/pin-up space along primary E-W corridor, with view to studio behind students; Primary corridor with view down towards the courtyard; Pocket student exhibition space along corridor (photo by Machado Silvetti); Exhibition storefront for Texas Fashion Collection along corridor. All photos, except where noted, by Anton Grassl
View of CVAD’s Eastern addition façade from across Welch Street. Photo by Corgan
The Next Chapter: Art Studio Facility
In 2018 Machado Silvetti returned to campus for the design of an additional Studio Arts Facility for CVAD. This facility houses two programs that were not able to be relocated in the first project in 2015 due to space and budget limitations. With similarly tight budget constraints, the new facility needed to be highly functional, flexible and adaptable. It will house spaces for instruction, critique, display, manufacturing, and exhibition for the ceramics and graduate programs. The team investigated a number of different locations and orientations balancing the visions outlined in the 2013 UNT Campus Master Plan with creating a cohesive arts precinct for the College of Visual Arts and Design and its potential future growth for its renowned Texas Fashion Collection. The chosen project site is the northeast corner of Welch and Mulberry Street in the block adjacent to the CVAD facility.
Preliminary Site Plan of the new Arts Studio Facility, showing connectivity with the CVAD building
The one story Arts Studio Facility has a front address to the town on Mulberry Street and its west façade is directly engaged in a dialogue with the CVAD building. The space between these two buildings will remain a much needed parking lot for the University in the near term with the ability to accommodate the Campus Master Plan in the future—placing a campus building of similar stature along Welch street and creating a second and equally successful arts courtyard on axis with CVAD’s courtyard and breezeway.
Clockwise from Top Left: Diagram expressing formal connectivity of the new Arts Studio Facility’s west façade detailing with the rhythm of CVAD’s roof monitors; Early rendering of the Art Studio’s west façade and inset brick bands that faces the CVAD building’s East addition; Rendering of the new Arts Studio Facility looking east with kiln yard in the foreground and CVAD beyond.
Project Credits
Owner: University of North Texas
CVAD Building:
Design Architect: Machado Silvetti
Architect of Record: Corgan
Landscape Architect: OJB Landscape Architecture
Structural Engineer: Datum Gojer
MEP Engineer: Purdy McGuire
Civil Engineer: Pacheco Koch
Lighting Design: Lam Partners
General Contractor: Hunt Construction
Arts Studio Facility:
Design Architect: Machado Silvetti
Architect of Record: VAI Architects
Structural Engineer: Datum Rios
MEP Engineer: Campos Engineering
Civil Engineer/Landscape Architect: Pacheco Koch
Photographs: Authorship noted in captions
*All drawings and renderings are attributable to Machado Silvetti
Related Content
-
In establishing the motto “One College One Building,” the renovation and new construction of the College of Visual Arts and Design on the University of North Texas’ campus prioritized unification of collegiate programs through detailed structural organization. Learn more about the project and it’s scope here.
-
Speaking at the ceremony, Greg Watts, dean of the College of Visual Arts and Design, described the school’s intention and desires for this new building, "We've worked to design a building that functions around creativity and collaboration.” Read more about the opening ceremony here.
-
Our designs are a testament to our belief that architecture has the power to enhance the educational experience and contribute to the success of students and faculty alike. Learn more about our commitment to creating flexible and sustainable education environments here.
-
In our work with performing and visual arts institutions, we strive to create spaces that enhance and amplify the creative process. Explore more of our projects in the arts here.
-
Stories and interviews are an integral part of our architectural process and communication of important ideas in our past, present, and future projects. Continue to explore more of our stories & interviews here.