Utah Museum of Fine Arts

Description

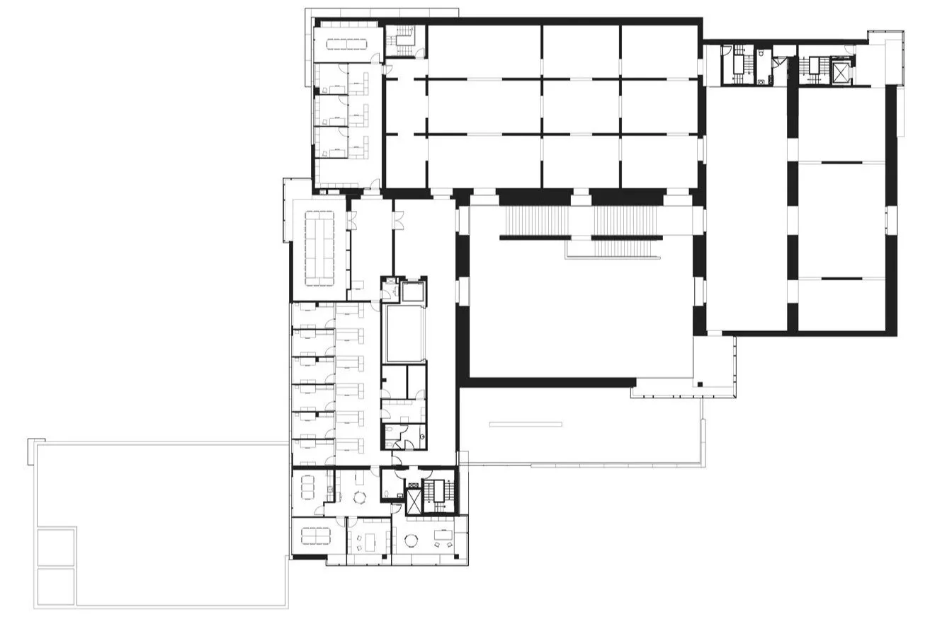
The site for the Marcia and John Price Museum Building occupies the southern end of the campus mall, creating a strong physical terminus that opens to an important vista. The architectural language of the campus—largely built in the 1960s—informed the overarching design decisions, and the building comprises five rectangular volumes that step up around a centrally located grand gallery. 

A grand stair orchestrates the museum’s overall composition: starting from the campus mall outside, it leads the visitor through the museum entry, into the grand gallery, and finally to a grand stair that connects with the upper levels of gallery space and culminates in a sculpture window oriented toward Mt. Olympus. On the outside, this sense of procession is reinforced by the sequential arrangement of rectangular volumes, each of which is clad in a unique brick pattern. Two window types define these masses—recessed horizontal bands and projected openings—and add another layer of abstract formal expression.  

Inside, the museum’s ground floor contains the grand gallery, temporary galleries, an art education center, a bookstore, a café and an auditorium; while the second floor houses galleries for the permanent collection, administrative offices and a library. At the museum’s core, a grand 55-foot-tall gallery crowned by a semi-translucent clerestory invites reflection and pause.

Details

A Landmark Museum
Salt Lake City, Utah 
2000

Awards

Honor Award | American Institute of Architects Utah Chapter | 2001

Honor Award | Boston Society of Architects | 2000

Award for Design | AIA New England | 2000

First Prize | Marcia and John Price Museum Building Competition | 1998

Publications

Cramer, Ned. "Accounting for Taste: Rodolfo Machado and Jorge Silvetti take (and give) pleasure in the severity of their new Utah Museum of Fine Arts." Architecture, November 2001: p. 108-117.

Taggart, Brian. "A New Museum as Campus Focal Point: University of Utah Fine Arts Museum Competition," Competitions, Fall 1998, pp. 24-41.

Drawings