Rockfeller Stone Barns

Description

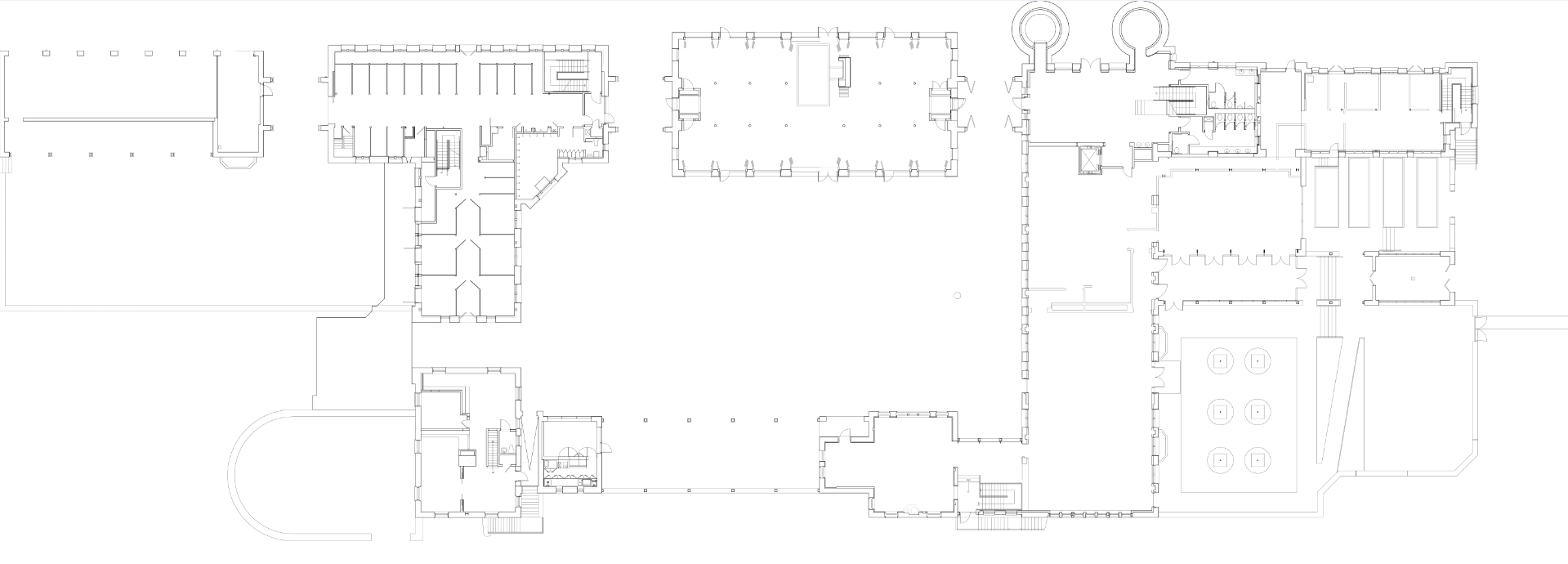
Created from a group of Norman-style barns built in the early 1930s by John D. Rockefeller, Jr., the Stone Barns Center for Food and Agriculture anchors a complex that includes a non-profit farm, a nature preserve, and the farm-to-table restaurant Blue Hill. It was developed by David Rockefeller, Sr., his daughter Peggy Dulany, and D.R. Horne & Company. 

The Center’s mission is to demonstrate, teach, and promote sustainable, community-based food production. The renovated spaces support this mission through their flexible programming, materiality, and connections to the landscape. Conference and classroom spaces are easily divisible to suit varying group sizes, while outdoor spaces can accommodate informal gatherings. 

Stone-informed material choices appear throughout the project: white oak stained to match the original chestnut, stained concrete, and slate. Light, transparent interventions within the stone walls feature simple, minimal detailing, in order to preserve the massive appearance of the original material.

Details

Repurposing the Pre-Existing
Pocantico Hills, New York
2004

Awards

Merit Award: Historic Preservation, Restoration, or Rehabilitation | Boston Society of Landscape Architects | 2010

Honor Award for Design Excellence in Architecture | Boston Society of Architects | 2004

Publications

Stephens, Suzanne. "Stone Barns Center, Pocantico Hills, New York." Architectural Record, Mar 2005: vol. 193, no. 3, pp. 122-127.

Drawings


Stories

Rockefeller Stone Barns: Not Just Green

Story